在工程制图时,设计人员可借助 SOLIDWORKS 强大的工程图模块,为设计所需的三维模型制作详细的加工图纸,尤其是在装配图的制作上可以说十分简便易用。

但在一些装配关系的表达中使用现有的工程图功能也许不尽人意。例如,我们需要将工程图视图中的外罩零件作为参考,要看到视图中透过外罩零件的内部结构时所制作出的结果就不尽人意。从而不得不增加多个视图来对图纸图面做更进一步的表达和完善,而这必然是违反工程制图原则的,图面应尽可能简洁、一目了然才是优秀设计人员所具备的专业素养。
本文小诺将围绕处理参考透明件在 SOLIDWORKS 工程图中的解决方案以及所遇到的各种问题展开概述,希望可以帮助到各位设计人员以最优的作业方式利用 SOLIDWORKS 来完成工作。

在 SOLIDWORKS 之前的版本中,如要处理参考件在工程图中为透明样式显示,则需要在装配体的三维模型中将参考件设置为 "封套" 然后再在工程图视图属性中将封套零部件显示出来并使用 "交替位置视图" 辅助来完成创建。整个过程极度繁琐,且结果未能完全满足我们的预期,不但处理后的内部结构件线型样式难以修改,BOM 统计中也会自动移除掉被设置为封套的外罩零部件!所以说,这个解决方案并不是最优的,只能作为绕行方案使用。



!!!!!
SOLIDWORKS 2023版本新增功能
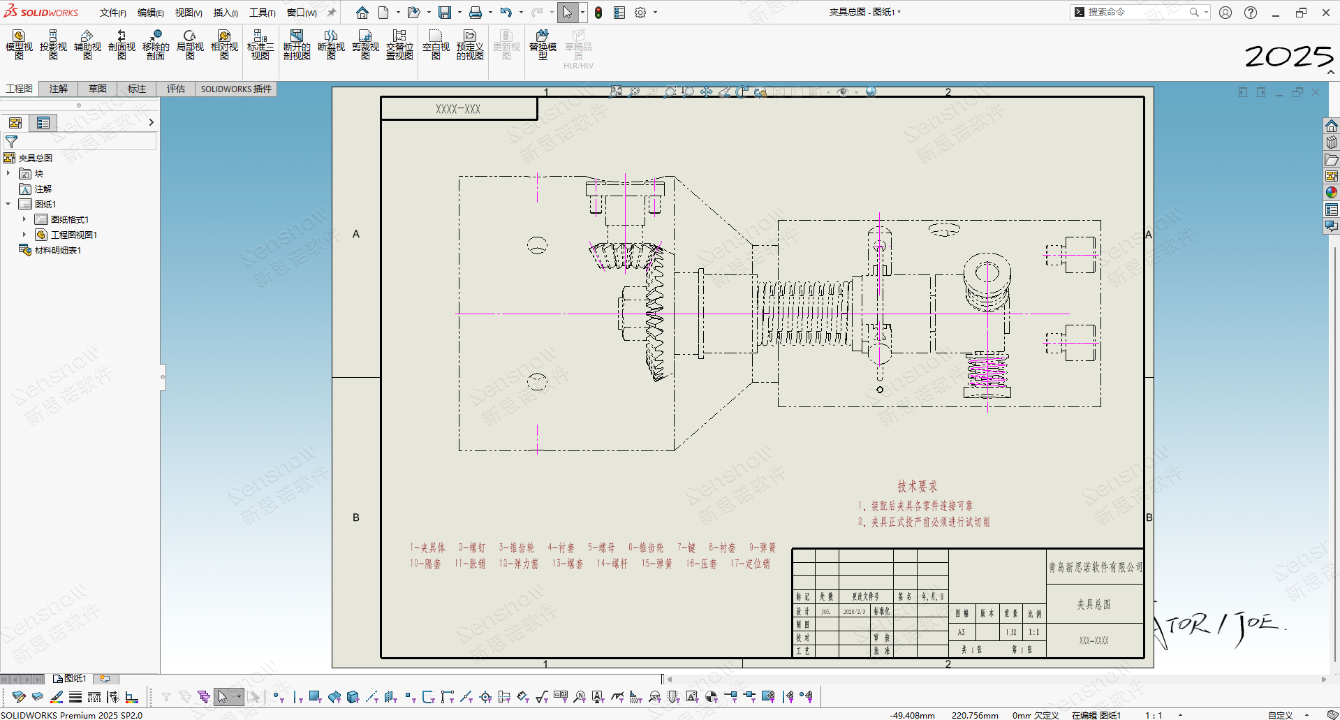
支持设置工程图视图为透明模型显示样式,只需勾选视图属性中的 "透视透明零部件" 选项后,即可在工程图视图中获得与三维模型相同的显示结果,将三维模型中我们设置为透明的外罩零部件一并传递至工程图中。


技术警报!!
有客户反馈此新增功能的设置对于部分图档不起作用,即使在视图属性中勾选了 "透视透明零部件" 后也不会按照我们预期创建结果!
即使将图纸重新创建也无法解决此问题,经过新思诺测试中心测试证实客户的模型没有任何问题,马上向研发反馈,通过:BR10000388995 Assembly components are not displayed as transparent with See through transparent components enabled in HLR drawing view 和 BR10000360050 Assembly components are not displayed as transparent with See through transparent components in HLR/HLV enabled in HLR drawing view 将问题上报至研发部门。

问题最终在 SOLIDWORKS 2025 SP 2 版本中修正,研发部门反馈此故障其实是一个预期的工作行为,当软件检测到模型设置透明度存在较多的实例后 "透视透明零部件" 选项将自动停止工作,这是结合使用性能的综合考虑而附加的功能限制。具体这个检测的阈值是根据零部件数量决定还是根据透明实例的体积或表面积来做依据我们并不知道,也无需知道。
好在SOLIDWORKS 2025 SP 2 版本中为其增加了一个系统选项,可以控制在我们勾选 "透视透明零部件" 选项后让软件始终按照预期的动作创建结果。只需勾选:选项 -> 系统选项 -> 工程图 & 性能 -> 保留被遮挡零部件的透明度即可,对于已经创建的工程图数据则需在勾选此选项后对工程图做一个强制重建所有配置的动作(Ctrl+Shift+Q)。



点击查看:【视频操作演示】
SENSNOW SOFTWARE
PRINCIPAL INVESTIGATOR / Joe.
· 原创内容未经授权严禁转载
· 禁止任何形式的洗稿、抄袭
400 636 8628